Blok

Patro

volné: 33 / rezervace: 4 / prodané: 8

Jednotka
   
Rezervace  
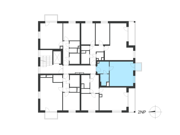
1+KK / 36m2
  • Ozn.
  • Účel místnosti
  • Plocha
  • 3.1
  • Chodba
  • 6,3m2
  • 3.2
  • Koupelna + WC
  • 3.6m2
  • 3.3
  • Obytný prostor + KK
  • 24,9m2
  • Plocha příček
  • 1.3m2
  • Podlahová plocha
  • 36m2
  • Balkón
  • 1.8m2
  • Plocha celkem
  • 37.8m2
5 053 000 Kč
Zjistit více o financování
standardy pro byt
PDF Katalog pro zobrazeni klikni
2.D.3
2.D.3
PDF Katalog pro zobrazeni klikni
2.D.3
2.D.3
PDF Katalog pro zobrazeni klikni
2.D.3
2.D.3
Kontaktujte mě

Kontaktujte mě

Kristina Pipotová
pipotova@imosdevelopment.cz
+420 737 986 339